AAFD-DU多回路故障電弧探測器在某高校項目上的應用
摘要
故障電弧集中顯示單元對接入線路中的故障電弧傳感器進行統一檢測。故障電弧傳感器可以對故障電弧(包括故障并聯電弧、故障串聯電弧)進行合理的檢測,當檢測到線路中存在引起火災的故障電弧時,顯示單元可以進行現場的聲光報警,并將報警信息傳輸給電氣火災監控設備。集中顯示單元可同時通過對配電回路的剩余電流、導線溫度等火災危險參數實施監控和管理。
故障電弧集中顯示單元適用于工業與民用建筑中10KW及其以下的電氣線路,其保護線路長度不宜大于100米。產品遵循國標GB 14287.4-2014,可適用于醫院、養老院、學校、商業建筑、賓館、工廠、庫房、圖書館、辦公室、家庭住宅、以及娛樂場所等。
關鍵詞:故障電弧探測器、故障電弧
1. 故障電弧的概念以及危害
故障電弧是由于電氣線路或設備中絕緣老化破損、電氣連接松動、空氣潮濕、電壓電流急劇升高等原因引起空氣擊穿所導致的氣體游離放電現象。
故障電弧是指由于電氣線路或設備中絕緣老化破損、電氣連接松動、空氣潮濕、電壓電流急劇升高等原因引起空氣擊穿所導致的氣體游離放電現象。故障電弧發生時,其中心溫度可高達3000 ℃左右,并伴隨有金屬噴濺物,足以引燃任何可燃物,引發電氣火災,對人民群眾的生命財產安全造成危害。
2. 項目介紹
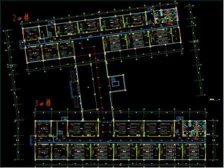
某高校位于某市經濟開發區,此次工程主要用于2#、3#兩棟理實教學樓,每棟教學樓為地上5層,建筑面積16144.22平方米,建筑高度室外至女兒墻頂高度為23.550米,本工程設計使用年限50年。
3. 用戶需求
①能夠接收多臺故障探測器信息并發出聲光報警,顯示報警部位及報警類型。
②可將數據上傳到電氣火災監控設備,遠程查看探測器的實時通訊故障及報警狀態。
4. 現場項目應用產品簡介
4.1產品外觀
4.2功能
● 支持 1路剩余電流,外接漏電互感器
●支持 4路溫度,外接溫度傳感器
●支持 32路故障電弧,外接故障電弧傳感器
●支持 2DI,2DO
●聲光報警,LCD點陣液晶顯示
●導軌式安裝,4模
● 485通訊,可連接電氣火災主機
●1路二總線,連接故障電弧探傳感器
●可選配4G上傳功能
4.3技術參數
5. 安裝與接線
5.1外形尺寸
正視圖 側視圖
5.2安裝方式
35mm導軌安裝,可加固定端子進行固定。
5.3接線端子
6. 配件介紹
7. 接線圖
8. 產品上圖
9. 現場安裝圖
10. 系統組網
結束語
在一些對于安全要求特別高的場所,故障電弧探測器的安裝和使用是很有必要的,目前大部分的建筑火災都是電火引起的,而故障電弧探測器能夠在線路或設備發生電弧故障時準確地報警,相關人員便可以盡快進行排查和檢修,避免人員的生命安全和財產安全受到威脅或損失。
參考文獻
[1].安科瑞電氣股份有限公司產品選型手冊.2019.07
[2].GB50116-2014 建筑設計防火規范[S].
[3].GB14287-2014 電氣火災監控系統[S].




掃一掃添加微信