楊興媚

江蘇安科瑞電器制造有限公司  江蘇江陰

【摘要】:消防應急照明和疏散指示系統由應急照明控制器、應急照明集中電源和消防應急燈具(消防應急照明燈具和消防應急標志燈具)等幾部分組成。該系統配合火災報警控制器使用,在火災時刻,能夠準確給出安全的疏散指示路徑,打開消防應急標志燈的指示方向以及消防應急照明燈,幫助建筑內的人群選擇逃生疏散路線,指引安全逃生方向。我司系統采用17寸工業平板電腦、Windonws7系統,可支持聯動報警、系統監控、故障報警、自檢、備電、記錄存儲與查詢、導光流、權限控制等多項功能,具有集中控制、靈活度高和可靠性強等優點,適用于范圍較大、內部空間較廣等特點的工業廠房項目。

【關鍵詞】:集中電源;集中控制;A-C-A100;消防應急照明和疏散指示系統;


0 前言

隨著經濟、科技的迅猛發展,人們開始追求建筑設施本身的人性化、現代化,大量高層樓宇、特大型建筑、地下設施的涌現,使得通道長、分支多、更復雜,同時也伴隨著安全問題的出現。隨著人們安全意識的提高,本著以人為本、生命安全為重的想法,對于人員密集、疏散距離長、疏散通道多、拐彎多、環境復雜、內部空間大的建筑,采用傳統的疏散指示方式不能及時對燈具進行維護管理,發生火災時大面積失效造成人員傷亡。為了避免造成群死群傷,實施迅速合理的應急疏散指示系統,集中控制型消防應急照明和疏散指示系統應運而生。本系統可準確實現對各應急燈具的實時監控和控制、日常24小時管理維護,保證系統運行正常,在發生火災時準確、迅速的引導人員到達安全區域,減少人員傷亡。

1. 項目介紹

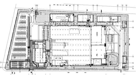
本項目為廠房建筑,總用地面積66683平方米,總建筑面積約為59526平方米,生產車間為丁類廠房,具有單防火分區大、內部空間較大、單區域燈具較少的特點。本司提供廠房消防應急照明和疏散指示系統的產品,要求各場所內應急疏散標志燈具采用集中控制型疏散指示逃生系統,當應急發生時,可通過火災監控系統的煙感探頭等檢測到具體的火災位置,并以通信方式將指令傳輸至本系統的主機,以控制場所內疏散標志的箭頭指向,確保人員沿正確的方向逃生及疏散。

2. 現場項目應用產品簡介

2.1 消防應急照明和疏散指示系統

消防應急照明與疏散指示系統由應急照明控制器(簡稱控制器、主機)、應急照明集中電源(簡稱集中電源)和消防應急燈具(簡稱燈具)(消防應急照明燈、消防應急標志燈,簡稱照明燈、標志燈)等幾部分組成。因本項目產品過多,此處只介紹主要產品。

控制器是消防應急照明和疏散指示系統的主機?刂破魍ㄟ^總線網絡實時監控各個終端,可以實時上報每個設備及燈具故障。在險情發生時,自動將信息指令發布到每個終端,終端收到指令之后開始工作,如頻閃、開、滅燈等工作,實時指示安全的疏散路線。

集中電源是安裝在建筑物內的備用集中式應急電源裝置。當建筑物發生火災、事故或其他緊急情況時,集中電源可以為照明燈、標志燈提供應急供電,保證消防應急照明和疏散指示系統正常工作。

照明燈為人員疏散逃生提供亮度支持。其安裝方式有壁掛式、吸頂式、嵌頂式。

標志燈為人員疏散逃生提供方向指示。其安裝方式有壁掛式、吊掛式、地埋式。


2.2 A-C-A100控制器

2.2.1 產品圖片及技術參數

圖1  A-C-A100產品圖片及技術參數


2.3 集中電源

2.3.1 A-D-0.5KVA-A200L產品圖片及技術參數


圖2  A-D-0.5KVA-A200L產品圖片及技術參數

 2.3.2 K-D-XKVA-1產品圖片及技術參數

                                 

圖3 K-D-1KVA-1產品圖片及技術參數                     

2.4 燈具

當發生火災時,消防應急標志燈具為人員提供應急疏散的指示方向,左向、右向和雙向的標志燈具一般用于指示疏散的走向,無方向的標志燈具一般用于指示安全出口、樓層和避難間,其安裝方式為壁掛式、地埋式。

消防應急照明燈具為人員疏散逃生提供照明,其安裝方式為壁掛式、嵌頂式、吸頂式。

本產品廣泛應用于機場、大型商場、寫字樓等公共場所安全通道出入口、走廊拐角處。


表一

3 現場應用                              


3.1 系統組網圖

 

圖3  系統組網圖

3.2 現場部分系統圖

本項目采用的方案是,燈具到集中電源通常二總線用法,集中電源到琴臺控制器中間使用CAN總線接法,由應急照明控制器至集中電源和分配電裝置采用手拉手接線時,通訊線長度不大于2000m,自由拓撲接線時,通訊線長度不大于500m。

 

圖4   總平面圖

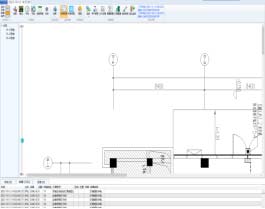
3.3 系統軟件運行

圖5系統運行主界面                     圖6  燈具配置界面

包含工具欄、平面展示、圖層列表、狀態欄,       可以查看所有燈具狀態與數量

可以直觀的查看監控設備的運行狀態,并根據            

狀態欄的現實內容直接切換至故障具體位置              

                                         

圖7 事件記錄界面

可查看歷史操作、故障信息,可按日期進行查詢

3.4 設備現場應用照片

圖8

圖9                                              圖10

4.結束語

隨著我國經濟的快速發展,科技的進步,建筑現代化及建筑消防的重視程度也隨之提高,本文分析了本司生產的消防應急照明和疏散指示系統在工業行業的應用,充分展現了在該類項目的組網中簡單、靈活、穩定、低成本的優勢。通過消防應急疏散系統能夠解決傳統消防應急疏散指示系統無集中控制、指示方向固定、疏散線路不能改變、指示效果不理想、安全性能低等問題。

安科瑞電氣著力打造各類火災安防系統的產品,在滿足國家行業標準要求的前提下,為各類建筑提供可靠、安全、節能的消防方案與消防產品,為防火減災、保障人民生命財產安全方面盡一份綿薄之力!


參考文獻

[1].安科瑞電氣股份有限公司產品選型手冊.2018.01

[2].GB50116-2014 建筑設計防火規范[S].

[3].GB17945-2010《消防應急照明和疏散指示系統》[S].

[4].GB51309-2018《消防應急照明和疏散指示系統技術標準》[S].


作者簡介:楊興媚,女,現任職于江蘇安科瑞電器制造有限公司,手機:18860995115,QQ:2881068602,郵箱:yangxingmei@email.acrel.cn